Stage House
FLY SYSTEM
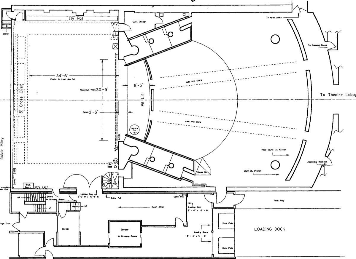
House Curtain
Operates as guillotine from the SL side.
Rigging System
Type: single purchase counter weight
Weight: 30,000 lbs. Available
Line Sets: 50 sets at 6 in. o.c. with 5 lift lines per set
Arbors: 1000 lb capacity
Line sets are moveable
Block & Falls not available
10 spot wheels available
PERMANENT INSTALLATIONS
Loading and Pin rail SR and SL
On Deck
Staircase downstage right
Sound Rack DSL
Stage Manager Rack DSR
ORCHESTRA PIT
Adjustable
Apron overhangs US wall of pit 9 ft., 0 in.
FLY SYSTEM
House Curtain
Operates as guillotine from the SL side.
Rigging System
Type: single purchase counter weight
Weight: 30,000 lbs. Available
Line Sets: 50 sets at 6 in. o.c. with 5 lift lines per set
Arbors: 1000 lb capacity
Line sets are moveable
Block & Falls not available
10 spot wheels available
PERMANENT INSTALLATIONS
Loading and Pin rail SR and SL
On Deck
Staircase downstage right
Sound Rack DSL
Stage Manager Rack DSR
ORCHESTRA PIT
Adjustable
Apron overhangs US wall of pit 9 ft., 0 in.
BACKSTAGE
LOADING DOCK
Loading Door: 10'-0" high x 10'-0" wide
Trucks: one at a time
Loading Dock: Shared with Westin Hotel
restricted hours may apply
WARDROBE
Location: Basement
Access: Elevator from dock
Facilities: 2 Washers, 2 Dryers
DRESSING ROOMS
Star Room(s): Bath & Shower included
(2) in basement
Medium Room(s): NO Bath or Shower
(4) in basement
Chorus Room: NO Bath or Shower
(1) in basement
STORAGE AND REHEARSAL AREAS
Storage Space: none
Rehearsal Space: none
Communications
Backstage page
Clearcom 2 channel w/4 wireless packs
Hearing Impaired Listen Everywhere system
Cue Light system
(all located at SM rack DSR)
LOADING DOCK
Loading Door: 10'-0" high x 10'-0" wide
Trucks: one at a time
Loading Dock: Shared with Westin Hotel
restricted hours may apply
WARDROBE
Location: Basement
Access: Elevator from dock
Facilities: 2 Washers, 2 Dryers
DRESSING ROOMS
Star Room(s): Bath & Shower included
(2) in basement
Medium Room(s): NO Bath or Shower
(4) in basement
Chorus Room: NO Bath or Shower
(1) in basement
STORAGE AND REHEARSAL AREAS
Storage Space: none
Rehearsal Space: none
Communications
Backstage page
Clearcom 2 channel w/4 wireless packs
Hearing Impaired Listen Everywhere system
Cue Light system
(all located at SM rack DSR)